Bản vẽ autocad song
chắn rác là thứ không thể thiếu khi sản xuất và thi công song chắn rác. Thế
nhưng thông tin về nó thì không phải ai cũng nắm được. Vì thế hôm nay Phú Đô sẽ
cung cấp cho các bạn những điều cần biết về bản vẽ autocad song chắn rác, hãy cùng xem và khám
phá nhé.
Bản vẽ autocad song chắn
rác là gì?
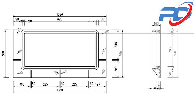
Bản vẽ autocad song chắn rác là một bản mô tả chi tiết về
song chắn rác, nó bao gồm các thông số về kích thước, hình dạng, vật liệu… Nó
là căn cứ quan trọng để sản xuất cũng như là thi công lắp đặt song chắn rác
Tác dụng của bản vẽ autocad
song chắn rác
Tác dụng của bản vẽ autocad song chắn rác có rất nhiều. Sau
đây là một vài tác dụng cơ bản của loại bản vẽ sản phẩm này.
Đảm bảo sự chính xác trong quá trình sản xuất
Khi sản xuất song chắn cần sự đồng bộ và chính xác. Và để có
được điều đó chúng ta cần đến bản vẽ thiết kế. Nội dung trong bản vẽ này sẽ quy
định kích thước, chất liệu, hình dạng… cũng như là các yêu cầu về kỹ thuật đối
với song chắn rác khi hoàn thành.
Sản xuất song chắn rác dựa vào bản vẽ sẽ ít xảy ra lỗi hay sự
cố. Điều này sẽ giúp cho các sản phẩm sau khi sản xuất sẽ có chất lượng và hiệu
quả sử dụng cao hơn.
Dễ dàng kiểm tra và đánh giá
Việc đánh giá lại chất lượng sản phẩm sau khi sản xuất vô
cùng quan trọng. Công việc này cho phép nhà sản xuất đánh giá xem sản phẩm mình
tạo ra có đáp ứng đủ điều kiện mà khách hàng đưa ra hay không? Nếu sản phẩm đã
đạt yêu cầu mới xuất kho và vận chuyển đến cửa hàng hoặc đơn vị cần cung ứng.
Và để làm được điều đó thì chúng ta không thể thiếu được bản vẽ autocad.
Không chỉ đối với việc sản xuất mà việc thi công lắp đặt
song chắn rác cũng rất cần đến bản vẽ autocad. Nó là căn cứ để xác định xem với
kích thước hiện tại thì song chắn rác đó sẽ phù hợp với hố ga như thế nào? Nếu
chưa phù hợp thì cần phải điều chỉnh một vài chỉ số để sản phẩm có thể tương
thích tốt nhất với vị trí hố ga cần lắp đặt. Ngoài ra bản vẽ autocad song chắn
rác còn mang đến nhiều tác dụng khác. Các bạn có thể tham khảo và tìm hiểu
thêm.
Các thông số của bản vẽ
autocad song chắn rác
Bản vẽ autocad song chắn rác có nhiều thông số bắt buộc phải
có. Sau đây là một vài thông số cơ bản của loại bản vẽ này:
- Kích thước: Chiều dài, chiều rộng, độ dày của song chắn
rác.
- Hình dạng: Hình dạng của các thanh chắn, khung bao quanh.
- Vật liệu: Chất liệu sử dụng cho thanh chắn (gang,
composite, inox,...).
- Kết cấu: Các bộ phận của song chắn rác.
- Tải trọng: Tải trọng mà song chắn rác có thể chịu được.
- Mối nối: Cách thức kết nối các thanh chắn với nhau và với
khung.
- Chi tiết kỹ thuật: Các yêu cầu kỹ thuật khác như độ nhám bề
mặt, dung sai kích thước.
Mua song chắn rác ở đâu tốt?
Phú Đô là đáp án không thể nào hoàn hảo hơn cho câu hỏi: Mua
song chắn rác ở đâu tốt? Sau đây sẽ là một số thông tin nổi bật về sản phẩm của
công ty chúng tôi.
Song chắn rác đa dạng và phong phú
Các sản phẩm song chắn rác do Phú Đô cung cấp đều đảm bảo chất
lượng cao, nguồn gốc xuất xứ rõ ràng. Chúng tôi tự tin rằng với bất cứ loại hố
ga nào thì công ty cũng sẽ có các sản phẩm song chắn rác thích hợp. Không những
thế các bạn có thể đặt hàng song chắn rác theo yêu cầu với giá bán hợp lý và chất
lượng sản phẩm luôn được đảm bảo.
Song chắn rác từ Phú Đô vô cùng đa dạng về kiểu dáng và chủng
loại. Trong đó phải kể đến sự đa dạng về chất liệu, cụ thể đó là các loại song chắn rác bằng gang, song chắn rác composite, song chắn rác bằng thép…
Giá cả phải chăng, bảo hành lâu dài
Đến với công ty Phú Đô thì các bạn sẽ luôn yên tâm về giá cả.
Công ty cam kết giá bán các loại nắp hố ga, song chắn rác tốt nhất trên thị trường.
Với khách hàng nào đặt sản phẩm với số lượng lớn sẽ nhận được nhiều ưu đãi hấp
dẫn.
Chế độ bảo hành của sản phẩm cũng rất tốt. Trong thời gian bảo
hành nếu sản phẩm có bất cứ lỗi gì xuất phát từ nhà cung cấp, các bạn có thể
liên hệ với Phú Đô để được xử lý hoặc đổi trả hàng theo quy định ghi trong hợp
đồng mua bán.
Hiện nay công ty cũng triển khai chương trình giao hàng tận
nhà. Điều đó có nghĩa là dù bạn ở bất cứ đâu thì vẫn có thể sở hữu những sản phẩm
nắp hố ga và song chắn rác chất lượng từ Phú Đô. Ngoài ra sản phẩm và dịch vụ của
công ty còn nhiều điều tuyệt vời khác. Các bạn hãy đến với chúng tôi để có được
cảm nhận đầy đủ và chân thực nhất.
Xem thêm bài viết liên quan khác trên blog: 3+ công dụng của nắp hố ga bạn nên biết.
Kết luận
Trên đây là những điều cần biết về bản vẽ autocad song chắn rác. Hy vọng rằng các bạn sẽ tìm được những điều hữu ích thông qua bài viết này. Mọi thông tin cần biết các bạn có thể truy cập: https://napga.vn/ hoặc số điện thoại: 0963 881 801 – 0916485385.





0 nhận xét:
Đăng nhận xét